Používame cookies

Súbory cookie a ďalšie technológie sledovania používame na zlepšenie vášho zážitku z prehliadania našich webových stránok, na to, aby sme vám zobrazovali prispôsobený obsah a cielené reklamy, na analýzu návštevnosti našich webových stránok a na pochopenie toho, odkiaľ naši návštevníci prichádzajú. Viac info

Budova s funkciou bytov na predaj, Bratislava, Nové Mesto

  • Exkluzívna ponuka

Popis nehnuteľnosti

Zdieľať na Facebooku

Kancelária Realitné Očko Vám prínáša na predaj jedinečnú ivestičnú príležitosť, budovu vo vyhľadávanej lokalite hlavného mesta Bratislava.

Možnosť zmeny funkčnosťi využitia budovy na bytové jednotky.

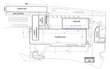
Budova s. č. 3291 – Pošta 090 Samostatne stojaca budova nachádzajúca sa v hlavnom meste Bratislava – Nové Mesto na ul. Tomášikova.  Budova je čiastočne podpivničená s troma nadzemnými podlažiami. Jednotlivé podlažia sú prepojené schodiskami a výťahmi, pričom jeden výťah je osobný a dva sú nákladné. Budova je osadená na rovinatom teréne, založená na kombinovaných základových konštrukciách – pásy, doska, rošt na mikropilótach. Nosný systém budovy je riešený monolitickým skeletom v moduloch, obvodový plášť je murovaný z ľahčených tehlových tvaroviek s úpravou vonkajšej omietky. Vnútorné deliace priečky sú murované a z demontovateľných presklených priečok. Strešná konštrukcia je plochá, tepelne izolovaná a ukončená štrkovou vrstvou, klampiarske prvky sú z pozinkovaného plechu. Budova je chránená bleskozvodom.Budova s. č. 3497 – Prekládková hala, Pošta  Samostatne stojaca budova postavená na rovinatom pozemku, prepojená s administratívnou budovou s. č. 3497. Pôdorysný tvar budovy je obdĺžnikový. Budova je podpivničená s dvoma nadzemnými podlažiami. Jednotlivé podlažia sú prepojené schodiskami, výťahmi a 1. NP a 2. NP sú prepojené oceľovým krčkom. Jedná sa o halový objekt so skeletovým nosným železobetónovým systémom z prefabrikovaných prvkov. Obvodový plášť aj vnútorné deliace priečky sú murované – tehlové, stropné konštrukcie sú prefabrikované – železobetónové, vnútorné deliace priečky majú vápenno-štukovú omietku.Budova s. č. 3497 – Administratívna budova  Samostatne stojaca budova postavená na rovinatom pozemku. Pôdorysný tvar budovy je obdĺžnikový. Budova je čiastočne podpivničená so šiestimi nadzemnými podlažiami. Jednotlivé podlažia sú prepojené schodiskami a výťahmi – 2x osobný výťah a 1x nákladný. Jedná s o objekt, kde nosný systém je zo železobetónového montovaného skeletu. Základy budovy sú prevedené zo zhutneného vodotesného betónu, obvodový plášť je vytvorený zo závesných stien, pričom vodorovné konštrukcie sú panelové doplnené monolitmi. Priečky sú z tehlového muriva s vápenno-cementovou omietkou štukovou, v komunikačných priestoroch čiastočne natreté s latexovou farbou.  Strecha je plochá, vytvorená železobetónovými panelmi na plynosilikátovej doske v spáde s vrstvou cementového poteru s lepenkovou strešnou krytinou.

Cena nezahŕňa proces prihlásenia sa do verejnej súťaže a províziu realitnej kancelárie.

Pre viac doplňujúcich údajov ma neváhajte kontaktovať.

Zuzana Omastová, +421-911-099-962, zuzana.omastova@realitneocko.sk

Predávate, kupujete, prenajímate? Využite naše nadštandardné služby. Sme tu pre Vás.

Vaše Realitné Očko

Vlastnosti

Status:
aktívne
Vlastníctvo:
iné
Úžitková plocha:
23 m2
Zastavaná plocha:
23 m2
Podlahová plocha:
7109 m2
Stav:
čiastočne prerobený
Typ budovy:
zmiešané
Typ výbavy:
nevybavený
Garáž:
áno
Verejné vonkajšie parkovanie:
áno
Rok výstavby:
1982
Celková plocha:
23 m2
Počet vonkajších parkovacích miest:
50
Inžinierske siete:
áno
Voda:
áno
Elektrika:
áno
Plyn:
áno
Kanalizácia:
áno
Voda - na pozemku:
áno
Elektrika - na pozemku:
áno
Plyn - na pozemku:
áno
Kanalizácia - na pozemku - kanalizácia:
áno
Vykurovanie - centrálne:
áno
Telefón:
áno
Internet:
áno

Hypotekárna kalkulačka

9 500 000 € Cena nezahŕňa proces odpredaja
Ulica: Tomášikova
Obec: Bratislava-Nové Mesto
Okres: Bratislava III
Kraj: Bratislavský kraj
Druh: Objekty
Typ: Predaj
Typ objektu: Polyfunkčná budova

Zuzana Omastová

Lokalita: Bratislavský kraj
  • Slovensky
  • Česky
  • English

Radi Vám poradíme